With a balanced palette of blue, white and light mango wood, this space exudes a modern yet warm atmosphere. We gave this flat the name Suomi.
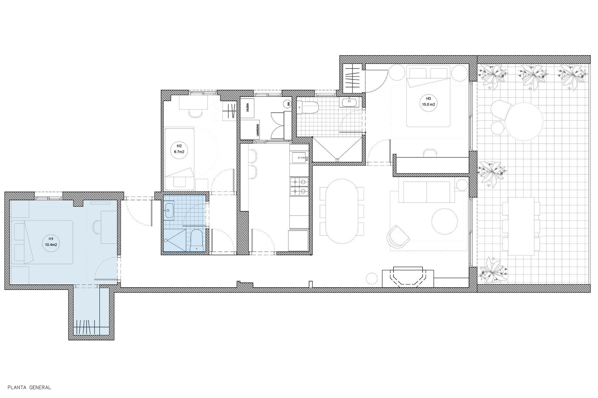
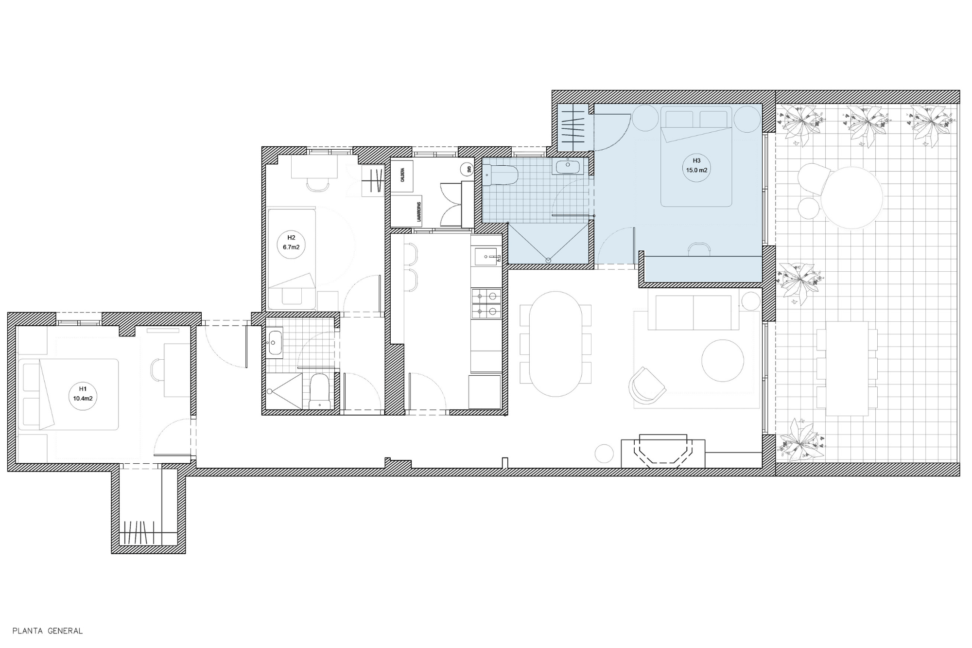
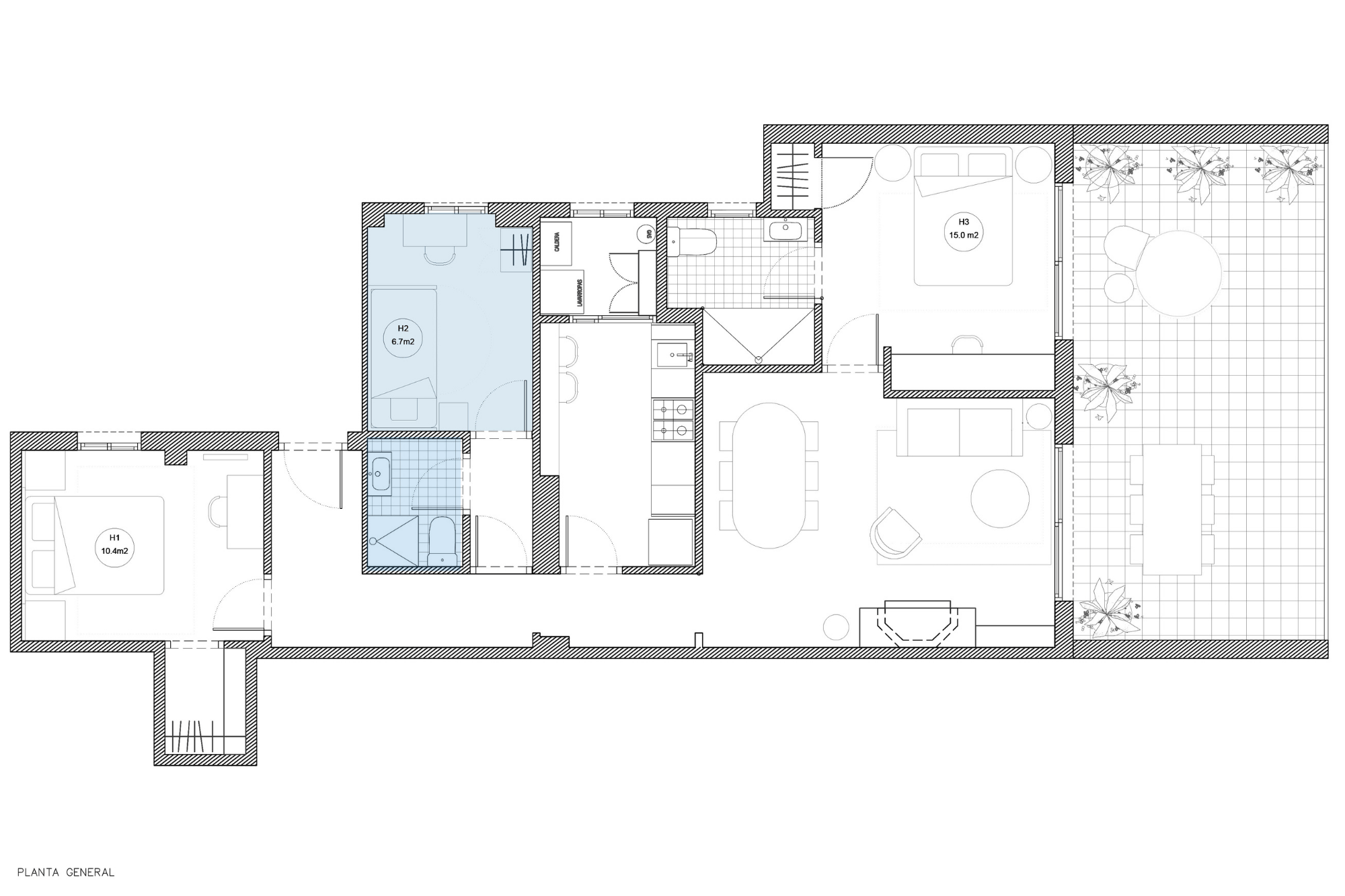
this 128 m² shared flat has a terrace with a direct up-close view of the Sagrada Familia. It is located on the top floor of a building with an elevator.






